Real Roots

Welcome to Our World of Mountain Living

Nestling Woods redefines luxury living in Kasauli, offering exquisite residences amidst serene Himalayan landscapes with premium amenities.

OUR MISSION

Elevate your living experience: indulge in our premium residential

complex amenities

Real state

Epitomizing luxury in upscale living

Nestling Woods shines as a symbol of luxury in the world of upscale residences. Total 80 homes designed with perfection, surrounded by breathtaking views, every home is a work of art, blending luxurious comfort with sophisticated elegance, offering an unparalleled retreat in residential paradise.

We create
comfort &
elegance

Luxurious Havens

Available apartments

Studio Apartment

Type A                  :707 SQ. FT.
Type B                  :882 SQ. FT.
Apartment Type : Studio

1BHK Apartment

Type C                   :923 SQ. FT.

Type D                   :1061 SQ. FT.

Apartment Type  :1BHK

Expertly crafted

Layout Plans

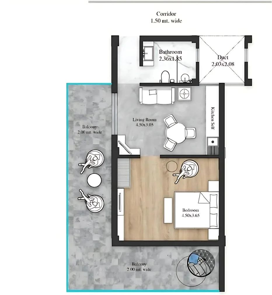
Studio Apartment

This studio apartment layout offers a spacious bedroom, functional living area, and dual balconies, ensuring comfort and practicality. Its smart design maximizes space, providing an ideal solution for modern living.

  • Living Room Dimensions: 4.50m x 3.05m
  • Bedroom Dimensions: 4.50m x 3.65m
  • Balcony Width: 2.00m (both balconies)
  • Corridor Width: 1.50m
  • Bathroom Dimensions: 2.36m x 1.85m
  • Duct Dimensions: 2.03m x 2.08m

Type C – 707 sq.ft.
Type B- 882 sq.ft.A

Nestling woods map
Nestling woods map

1BHK Apartment

This layout plan combines smart space utilization with modern comforts, featuring a spacious living area, a cozy bedroom, and a large balcony. Designed for elegance and functionality, it’s perfect for contemporary living.

  • Kitchen Dimensions: 1.86m x 2.68m
  • Drawing/Dining Room Dimensions: 3.30m x 5.57m
  • Bedroom Dimensions: 3.30m x 3.65m
  • Powder Room Dimensions: 1.25m x 1.96m
  • Bathroom Dimensions: 2.20m x 1.80m
  • Balcony Dimensions: 6.72m x 1.85m
  • Duct Dimensions: 1.87m x 2.18m

Type C – 923 sq.ft.
Type D- 1061 sq.ft.

what we offer

Our Amenities

From recreational spaces to essential conveniences, our amenities are designed to balance elegance, comfort, and functionality seamlessly

 
amenities

Fuly Furnished

Experience the Ease of Homes with Luxurious Furnishings Included.

Social spaces

Where Flavors Meet Friendships: Dine, Celebrate, Connect.

Kids Area

A Vibrant Play Zone That Offers Hours of Entertainment and Smiles for Kids.

Exclusive Parking

Dedicated Parking Spaces, Designed to Add Comfort to Your Everyday Life.

Gymnasium

Stay Fit, Stay Healthy: A Fully Equipped Gym That Inspires Your Best Self.

Security 24/7

Round-the-Clock Security, Because Peace of Mind Matters.

Let’s Start Your Home Journey – We’re Just a Call Away

Scroll to Top